VERBANIA - 10.07.2018 - Le vie di Verbania?
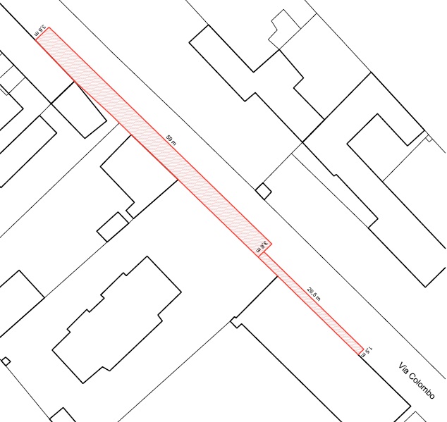
"Strade Arlecchino" le hanno battezzate al coordinamento cittadino di Forza Italia, nel commentare il piano asfaltature del Comune, visto come il trionfo della "logica del rattoppo". "Basta vedere gli elaborati grafici divulgati dalla stessa Amministrazione Marchionini - si legge nel comunicato - . Due casi emblematici (foto in basso, ndr): quello di via Mondovì, dove si asfaltano 4 metri di strada, poi 6 metri, poi altri 4 e infine ancora 4, con in mezzo ampi tratti che restano intoccati e addirittura uno, di 6 metri, che viene rifatto solo per metà della sezione. Ma in via Colombo si riesce a fare ancora meglio: 59 metri in cui si asfalta solo mezza carreggiata, e addirittura un tratto di 26,5 metri in cui si rifà solamente una sezione larga un metro e mezzo: una trincea, insomma. Il tutto per creare una bella serie di scalini che, ne siamo certi, saranno particolarmente apprezzati dagli automobilisti e ancor di più da ciclisti e motociclisti".
Forza Italia rimarca come "che per i primi tre anni l’attuale giunta si è completamente dimenticata" delle asfaltature cittadine, ma "se questo è il 'piano asfalti' - dicono - , francamente, meglio lasciare le cose come stanno, in attesa che arrivi (si spera presto) qualcuno che affronti la manutenzione delle strade cittadine con più criterio".




